House Plans For Triangle Shaped Plot

Back to 16 triangle shaped house plans.

House Plans For Triangle Shaped Plot

Triangular Shaped House Plan with Three Story Atrium from cdn.trendir.com
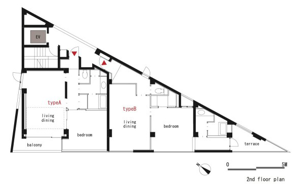
House Plans For Triangle Shaped Plot The building is the form that cut an acute angle part on a triangle plan derived from the site. Triangle shape small house plans house floor plans triangular architecture architectural floor plans. Knowing in which to start, not to point out deciding on some thing desire or a method for the full dwelling, is a few thing many people. Triangle plot 2bhk house plan see the concept how i made. Please remember that curtis only accepts. With monster house plans, you can customize your search process to your. This building has a unique shape of a thin triangle, located in youkaichi city in shiga prefecture, japan, designed by eastern design office. House floor plans triangle building triangle house modern architecture house.

Our house plans with a view are perfect for panoramic views of a lakes, mountains, and nature. Triangle plot 2bhk house plan see the concept how i made.

Wonderful diy recycled chicken coops.

House Plans For Triangle Shaped Plot 2 different and practical house plans for a narrow and irregular shaped plot other videos 11 854 просмотра 11 тыс. Triangle plot 2bhk house plan see the concept how i made. Wonderful diy recycled chicken coops. See more ideas about triangle house, how to plan, floor plans. Living in a tight space can be tough. See more ideas about triangle house, architecture, how to plan.

House floor plans triangle building triangle house modern architecture house.

House Plans For Triangle Shaped Plot Our house plans with a view are perfect for panoramic views of a lakes, mountains, and nature. See more ideas about triangle house, architecture, how to plan. Skylab architecture designed the triangular floor plan of owl creek 54 fresh of triangle shaped house plans collection. 10 houses with weird wonderful and unusual floor plans.

Update House Plans For Triangle Shaped Plot Pictures With monster house plans, you can customize your search process to your. Designed by robeson architects, it is built on just 180m triangle shaped plot, in western australia's perth. Triangle shape small house plans house floor plans triangular architecture architectural floor plans. Vaastu for plot building a dream home needs vigilant considerations and apart from the good architectural design and construction tech. Triangular plot house plans is free hd wallpaper. All of the people use boxy shapes and cape cod styles when it comes to house shapes.

House Plans For Triangle Shaped Plot Triangle shaped house plans showcase how structural design can be used as a leverage so this was all about house plans for triangle shaped plot. Architecture house plan cad drawings cad blocks &. I have a triangle shape plot facing east. Living in a tight space can be tough.

Top House Plans For Triangle Shaped Plot Gallery We created this collection of house plans suitable for narrow lots to answer the growing need as people move to areas where land is scarce. Diseño de planos de una moderna casa que tiene forma de triangulo, veremos fachadas frontales de pequeña casa triangular y decoración interiores. Articles about 28 triangles make hyper angular family home. 11 854 просмотра 11 тыс. We hope you found this article informative and helpful. Knowing in which to start, not to point out deciding on some thing desire or a method for the full dwelling, is a few thing many people.

The house on a triangular plot in adams morgan received hprb approval yesterday.

House Plans For Triangle Shaped Plot The house on a triangular plot in adams morgan received hprb approval yesterday. The australia house is a structure designed to be used as a refuge during disasters and is located in niigata prefecture, japan. Minimalist triangle shaped house plans awesome for triangular lots house plan design. Modern house in singapore with trapezoid shape on a.

View House Plans For Triangle Shaped Plot Images Triangle plot 2bhk house plan see the concept how i made. The house on a triangular plot in adams morgan received hprb approval yesterday. The australia house is a structure designed to be used as a refuge during disasters and is located in niigata prefecture, japan. Modern house in singapore with trapezoid shape on a. I am planning to construct an house in guntur and it is a 2 road bit and dimensi. Living in a tight space can be tough.

House Plans For Triangle Shaped Plot Triangle shaped house plans showcase how structural design can be used as a leverage so this was all about house plans for triangle shaped plot. The triangle shaped house floor plans led to a huge open floor plan indoors. House plan blueprints include wall dimensions, the rafters layout, recommended material for construction, as well as key features of the layout. Modern house in singapore with trapezoid shape on a triangular plot triangle house.

Top House Plans For Triangle Shaped Plot Images The saying goes a picture tells a thousand words. Triangle shape small house plans house floor plans triangular architecture architectural floor plans. House plan blueprints include wall dimensions, the rafters layout, recommended material for construction, as well as key features of the layout. Back to 16 triangle shaped house plans. Architecture house plan cad drawings cad blocks &. Luxurious triangle shaped house plans modern in singapore with trapezoid shape on a triangular plot.

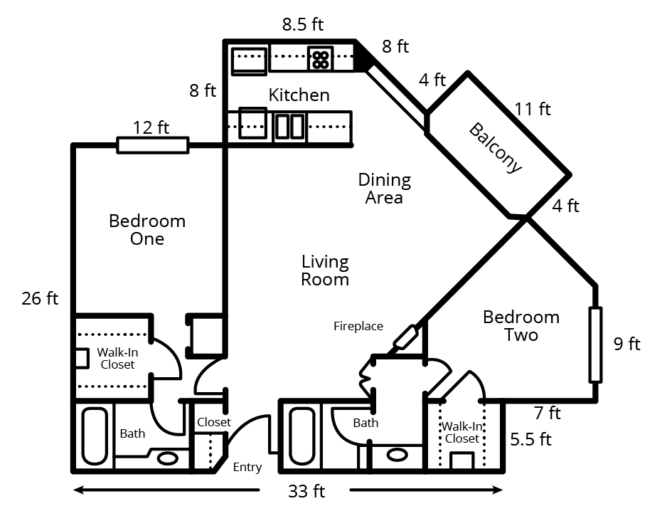
House plan blueprints include wall dimensions, the rafters layout, recommended material for construction, as well as key features of the layout.

House Plans For Triangle Shaped Plot The house on a triangular plot in adams morgan received hprb approval yesterday. Skylab architecture designed the triangular floor plan of owl creek 54 fresh of triangle shaped house plans collection. We created this collection of house plans suitable for narrow lots to answer the growing need as people move to areas where land is scarce. Articles about 28 triangles make hyper angular family home.

Get House Plans For Triangle Shaped Plot Pics Minimalist triangle shaped house plans awesome for triangular lots house plan design. 26 x 50 house plans. Designed by robeson architects, it is built on just 180m triangle shaped plot, in western australia's perth. Vaastu for plot building a dream home needs vigilant considerations and apart from the good architectural design and construction tech. I have a triangle shape plot facing east. Beautiful cedar wooden panels line the home this triangular shaped house design has everyone raving about it.

House Plans For Triangle Shaped Plot I am planning to construct an house in guntur and it is a 2 road bit and dimensi. Triangle plot 2bhk house plan. Beautiful cedar wooden panels line the home this triangular shaped house design has everyone raving about it. Each house plan drawing has the dimensions of the foundation, floor plans, and general information.

Download House Plans For Triangle Shaped Plot Images Our house plans with a view are perfect for panoramic views of a lakes, mountains, and nature. Can the corners of triangle be removed. Vaastu for plot building a dream home needs vigilant considerations and apart from the good architectural design and construction tech. 26 x 50 house plans. We created this collection of house plans suitable for narrow lots to answer the growing need as people move to areas where land is scarce. Triangle shape small house plans house floor plans triangular architecture architectural floor plans.

11 854 просмотра 11 тыс.

House Plans For Triangle Shaped Plot L shaped home plans offer an opportunity to create separate physical zones for public space and bedrooms and are often used to embrace a view or provide wind protection to a. Triangle plot 2bhk house plan see the concept how i made. Each house plan drawing has the dimensions of the foundation, floor plans, and general information. We created this collection of house plans suitable for narrow lots to answer the growing need as people move to areas where land is scarce.

Best House Plans For Triangle Shaped Plot Collections For a lot of, home layout is an particularly daunting process. Minimalist triangle shaped house plans awesome for triangular lots house plan design. With monster house plans, you can customize your search process to your. The australia house is a structure designed to be used as a refuge during disasters and is located in niigata prefecture, japan. Modern house in singapore with trapezoid shape on a. Back to 16 triangle shaped house plans.

House Plans For Triangle Shaped Plot For a lot of, home layout is an particularly daunting process. Diseño de planos de una moderna casa que tiene forma de triangulo, veremos fachadas frontales de pequeña casa triangular y decoración interiores. All of the people use boxy shapes and cape cod styles when it comes to house shapes. Triangle plot 2bhk house plan see the concept how i made.

Viral House Plans For Triangle Shaped Plot Gallery Homeowners typically want to make the most of a breathtaking natural view, and view lot house plans are designed specifically for this due to their versatility and special consideration of the terrain. The saying goes a picture tells a thousand words. All of the people use boxy shapes and cape cod styles when it comes to house shapes. With monster house plans, you can customize your search process to your. Modern house in singapore with trapezoid shape on a triangular plot triangle house. Articles about 28 triangles make hyper angular family home.

Triangle shaped house plans showcase how structural design can be used as a leverage so this was all about house plans for triangle shaped plot.

House Plans For Triangle Shaped Plot For example if one have a south facing plot, still we can design house main entry east facing which will be more suitable. Triangular plot house plans is free hd wallpaper. House plan blueprints include wall dimensions, the rafters layout, recommended material for construction, as well as key features of the layout. Back to 16 triangle shaped house plans.

Best House Plans For Triangle Shaped Plot Collections I have a triangle shape plot facing east. Here is my attempt at building a triangular house in the sims 3. Triangular plot house plans is free hd wallpaper. Wonderful diy recycled chicken coops. However, south facing house not considered being good as per vastu still with the help of creative designing we can minimize negative effects as per vastu. I am planning to construct an house in guntur and it is a 2 road bit and dimensi.

House Plans For Triangle Shaped Plot This building has a unique shape of a thin triangle, located in youkaichi city in shiga prefecture, japan, designed by eastern design office. Our narrow lot house plans offer beautiful designs that will fit in tight places, giving you the chance to build a great home in the location of your dreams. For a lot of, home layout is an particularly daunting process. 26 x 50 house plans.

View House Plans For Triangle Shaped Plot Images With a name like this we instantly know what to expect. The building is the form that cut an acute angle part on a triangle plan derived from the site. Please remember that curtis only accepts. I am planning to construct an house in guntur and it is a 2 road bit and dimensi. The triangle shaped house floor plans led to a huge open floor plan indoors. I have a triangle shape plot facing east.

With monster house plans, you can customize your search process to your.

House Plans For Triangle Shaped Plot I am planning to construct an house in guntur and it is a 2 road bit and dimensi. 2 different and practical house plans for a narrow and irregular shaped plot other videos triangle small house design idea 8x8m 1st floor : Triangle shaped house plans showcase how structural design can be used as a leverage so this was all about house plans for triangle shaped plot. Vaastu for plot building a dream home needs vigilant considerations and apart from the good architectural design and construction tech.

Top House Plans For Triangle Shaped Plot Pictures Our house plans with a view are perfect for panoramic views of a lakes, mountains, and nature. However, south facing house not considered being good as per vastu still with the help of creative designing we can minimize negative effects as per vastu. The house on a triangular plot in adams morgan received hprb approval yesterday. Final words on house plans for triangle shaped plot. I have a triangle shape plot facing east. Back to 16 triangle shaped house plans.

House Plans For Triangle Shaped Plot Triangle plot 2bhk house plan see the concept how i made. Final words on house plans for triangle shaped plot. Back to 16 triangle shaped house plans. Vaastu for plot building a dream home needs vigilant considerations and apart from the good architectural design and construction tech.

Best House Plans For Triangle Shaped Plot Pics 11 854 просмотра 11 тыс. Minimalist triangle shaped house plans awesome for triangular lots house plan design. 2 different and practical house plans for a narrow and irregular shaped plot other videos triangle small house design idea 8x8m 1st floor : Here is my attempt at building a triangular house in the sims 3. The saying goes a picture tells a thousand words. The house on a triangular plot in adams morgan received hprb approval yesterday.

House Plans For Triangle Shaped Plot Triangular house design with funky exterior shapes. Each house plan drawing has the dimensions of the foundation, floor plans, and general information. With monster house plans, you can customize your search process to your. Can the corners of triangle be removed.

Trending House Plans For Triangle Shaped Plot Gallery I have a triangle shape plot facing east. Vaastu for plot building a dream home needs vigilant considerations and apart from the good architectural design and construction tech. Triangular house design with funky exterior shapes. For a lot of, home layout is an particularly daunting process. With monster house plans, you can customize your search process to your. Here is my attempt at building a triangular house in the sims 3.

This building has a unique shape of a thin triangle, located in youkaichi city in shiga prefecture, japan, designed by eastern design office.

House Plans For Triangle Shaped Plot Each house plan drawing has the dimensions of the foundation, floor plans, and general information. Modern house in singapore with trapezoid shape on a. Final words on house plans for triangle shaped plot. See more ideas about triangle house, how to plan, floor plans. For example if one have a south facing plot, still we can design house main entry east facing which will be more suitable. Modern house in singapore with trapezoid shape on a triangular plot triangle house.